内回流轴流泵QJB-W7.5全变频

内回流轴流泵QJB-W7.5全变频结构设计:
叶轮:
采用后掠式反扭曲曲线设计,用不锈钢材料制造,并经过动平衡实验和精心加工,能高性能地传递电机输出功率。为使叶轮避免阻塞结渣,为防止在运转时叶轮与轴产生松动,在叶轮固定结构上采用了内部锁定装置。材质:304不锈钢或316不锈钢
电机:
潜水回流泵的电机与叶轮是直联式的,为全铜线圈电机、其绕组的绝缘等级为F等级,较大工作温度可达155OC,电机在较大载荷下不会出现过载现象,电机每小时可起动15次,但时间间隔应均匀。电机定子采用热套法嵌入机壳中,无需任何定位销钉,牢固可靠。正常情况下,电机的温升不超过80OC。
轴承:
电机转子由一个双列角接触球轴承和一个圆柱滚子轴承支撑;
潜水回流泵轴承的运行寿命大于100000小时;
轴密封:
潜水回流泵有两个机械密封和一个唇形密封组成。外密封腔内设置有螺旋
凹槽,以清除杂质,减少机封磨损。密封装置材料:碳化钨/碳化钨。
监测系统:
定子绕组中装有叁个串联联接的常闭型热敏开关,热敏开关在140OC动作。
电机定子腔及油室内设有泄漏检测器,以便检测动、静密封泄漏情况,并适时切断电源。
导杆:100*100*3导轨 304不锈钢 壁厚3mm
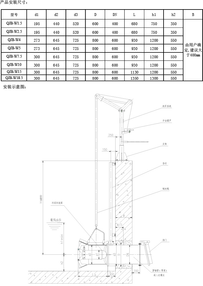
QJB-W7.5W内回流轴流泵型号表示方法:

结构简介:
1、设备名称 : 内回流轴流泵
2、设备型号: QJB-W7.5
3、主要技术参数
|
型 号技术参数 |
QJB-W7.5 |
|
流 量 m3/h |
816 |
|
扬 程 h |
0.9 |
|
功 率 kw |
7.5 |
|
叶轮直径 mm |
620 |
|
叶轮转速 r/min |
480 |
|
水 推 力 N |
1800 |
|
电机防护等级 |
IP68 |
|
电机绝缘等级 |
F |
|
穿墙管距池顶距离 m |
5.6 |
|
电 源 |
380V , 3ph , 50Hz |
|
数 量 套 |
3 |

内回流轴流泵QJB-W7.5用途说明:
江苏杜安环保QJB-W型潜水回流泵为两级污水处理厂混合液回流、反硝化脱氮的专用设备。亦可用于地面排水、灌溉和废水处理过程中再循环等需要微扬程、大流量的场所。
工作特点:
结构紧凑、安装方便、操作简单、易于维修、无噪音,可以随便装置。
适用范围:
内回流轴流泵在下列条件下能正常连续运行
海拔不超过1000m;
较高介质温度不超过40OC;
介质的PH值在5-9之间;
液体密度不超过1150kg/m3;
长期潜水运行,潜水深度一般不超过20m;

江苏杜安环保内回流轴流泵为成套装置,并需配备就地控制箱、不锈钢双导杆、不锈钢提升吊链、悬臂、起吊葫芦、穿墙管、拍门、控制箱到设备电缆等安全运行所必需的附件。
供货范围(包括但不小于以下)
(1) 装配完整的内回流轴流泵主机
(2) 监控单元
(3) 整套提升装置
(4) 每台泵需提供至少10m水下电缆
(5) 所有连接附件、预埋件地脚螺栓等;
(6) 三年备品备件




